Embajadores

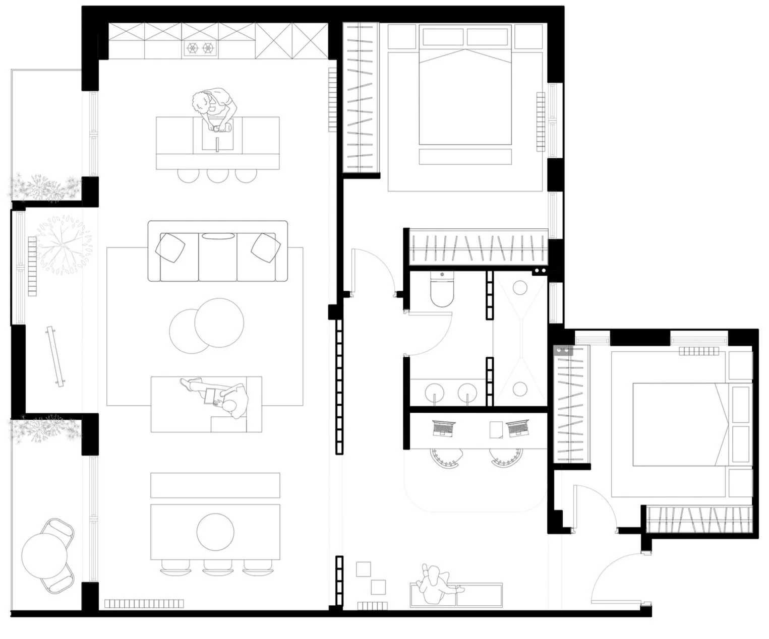
En el corazón de Embajadores, Madrid, hemos insuflado nueva vida a una vivienda que susurraba historias de los años 70. Este proyecto de reforma integral de vivienda no solo ha transformado un espacio, sino que ha tejido una narrativa donde la crudeza de materiales como el bloque de vidrio y la continuidad del solado dialogan con la calidez de texturas envolventes, creando una atmósfera de armonía palpable.

Más allá de la estética, este hogar se ha concebido como un reflejo íntimo del estilo de vida de sus habitantes. Los acentos de color vibrantes no son meros detalles, sino destellos de personalidad que dinamizan cada espacio. Cada elección, cada material, cada línea se ha orquestado para crear un santuario que no solo acoge, sino que también inspira y acompaña el día a día. Esta reforma es una celebración de la luz, la textura y, sobre todo, del arte de vivir intensamente en el corazón de la ciudad.

Hemos revisitado la esencia constructiva de la época con una mirada contemporánea, reinterpretando elementos icónicos para trascender las modas y arraigarse en un estilo atemporal. La luz natural, ahora dueña de cada rincón, revela la pureza de líneas y la amplitud visual que invitan a una vida fluida y sin obstáculos.

Cliente: Particular

Proyecto de diseño de interiores y construcción

Madrid, 110m²

Fotógrafo: Germán Saiz

Siguiente
Siguiente

Amparo, Lavapiés, Madrid.